Products

VAMP 220

Product Documentation

Complete product documentation is available in the Support section.

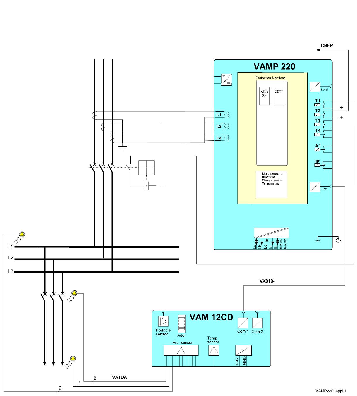
VAMP 220 Documentation Connection Diagram

Product highlights

The Vamp 220 is a state-of-the-art Arc Protection System for electrical power distribution systems. By using Vamp 220 in switchgears considerable safety improvements are obtained. Excellent experiences have been obtained from the more than a thousand systems delivered world-wide.

The continuous self test and self-supervision of the whole system, including the arc sensors and cables, guarantees the highest possible continuous reliability.

VAMP 220 is a modular system composed of a master unit, slave units, arc sensors, temperature sensors and possible trip multiplying units and interface units.

Central Unit VAMP 220

The central unit includes the current measuring unit and the breaker failure protection unit. A potentiometer for setting the current limit and keyboard and display for the man-machine communication are located on the front panel. Additionally the front panel also has a number of LEDs to indicate the status of the unit and the tripped outputs.

The central unit is flush mounted on a panel.

Slave Unit VAM 12 CD

The slave unit is wall-mounted inside the switchgear. Each slave unit can accomodate ten arc sensors, one portable sensor and one temperature sensor. The slave unit has switches for setting the address of the unit. The slave unit is wired to the central unit with a modular cable VX001-x.

Arc sensor VA 1 DA

The arc sensors are generally installed in every separate space in a switchgear. The electronics of the sensor as well as the cable between the sensor and the slave unit is constantly monitored.

Installing the system

The installation of the system is very easy, no special tools are needed because standard copper cables are used, not optical fibres. The configu-ration of the system is fully automatic, the central unit senses the number of slave units and sensors installed.

The selection of different features is made with the microswitches on the front of the unit.

EMC compatibility

The VAMP arc protection system is completely EMC tested and fulfils all relevant standards. No EMC-related problems have ever occurred in any of the many systems installed.